Bewertung eines Gastes:
Absolut Empfehlenswert!!!
Ich kenne eine Menge Ferienwohnungen bzw. -häuser. Noch nie war die Ausstattung so gut! Das Meiste unserer mitgebrachten Utensilien hätte ich gut und gerne zu Hause lassen können. Aber, wer konnte das Ahnen? Ein großes Lob!
Es war einfach alles da. Vom Salz, Zucker, Kaffeefilter, Kaffee, Öl, Gewürze allgemein, WC-Papier, Spülmittel und -Tabs für die Spülmaschine, Seife und Raumspray im Bad... kurz: die gesamte Grundausstattung! Herzlichen Dank!
Der Verwalter war für jede noch so profane Frage immer erreichbar und direkt zur Stelle. Im Haus sind ganz viele, gute Flyer für Unternehmungen/Ausflüge... Bei einem Anruf der Eigentümerin konnte ich feststellen, dass es Ihr ein wirkliches Bedürfniss ist, dass sich Ihre Gäste wohlfühlen.
Meinen (unseren!) Glückwunsch!! Das ist Ihnen gelungen!!!
Unser Ferienhaus Grevelingen ist komfortabel eingerichtet und eignet sich insbesondere für Paare oder kleinere Familien. Es liegt in dem ruhigen Parkteil “Grevelingen” des Noordzeepark Ouddorp am Ende einer Sackgasse. Zwei Jahre nach Fertigstellung - noch während der Bauphase des Nordseeparks - haben wir es als unser erstes Ferienhaus erworben und laufend modernisiert und ausgebaut. Wir haben uns dort immer sehr wohl gefühlt und möchten, dass es Ihnen in Ihrem Urlaub ebenso geht.
Der große, an Felder angrenzende Garten bietet Ruhe zum Entspannen und Sonnenbaden im Sommer, aber auch für Spiele der Kinder. Er ist von Hecken und Zäunen umgeben und damit kaum einsehbar. Ans Haus angebaut ist ein Abstellraum, niederländisch “berging”. Dort befinden sich die Waschmaschine, Gartenmöbel und Bollerwagen. Sie können dort auch Fahrräder oder Surfbrett unterstellen.
Im Herbst / Winter schafft der Kaminofen im Wohnraum eine gemütliche Atmosphäre. Der Massagesessel bietet nicht nur Entspannung, er eignet sich hinter dem großen Südfenster auch ideal als Lesesessel. Bücher und Spiele finden Sie in dem antiken Schrank im Wohnraum. Auch DVD’s für Kinder und Erwachsene sorgen abends für Spannung und Unterhaltung.


Allgemein
Wohnraum
Küche und Essbereich
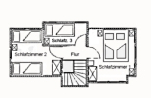
Schlafzimmer
Sanitär
Sonstiges